Middlesex County College | Main Hall Coffee Kiosk

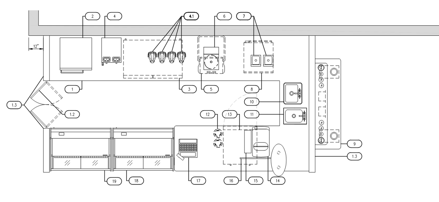
In an effort with SSP Architectural Group, we designed the electrical and plumbing infrastructure to support a new coffee kiosk to be installed in the Main Hall of Middlesex County College.

A combined waste and vent solution was designed for the sanitary system to accommodate various equipment indirect drainage. An electrical panel was coordinated with the college for power to the various equipment within the kiosk.

    • Electrical and Plumbing Design